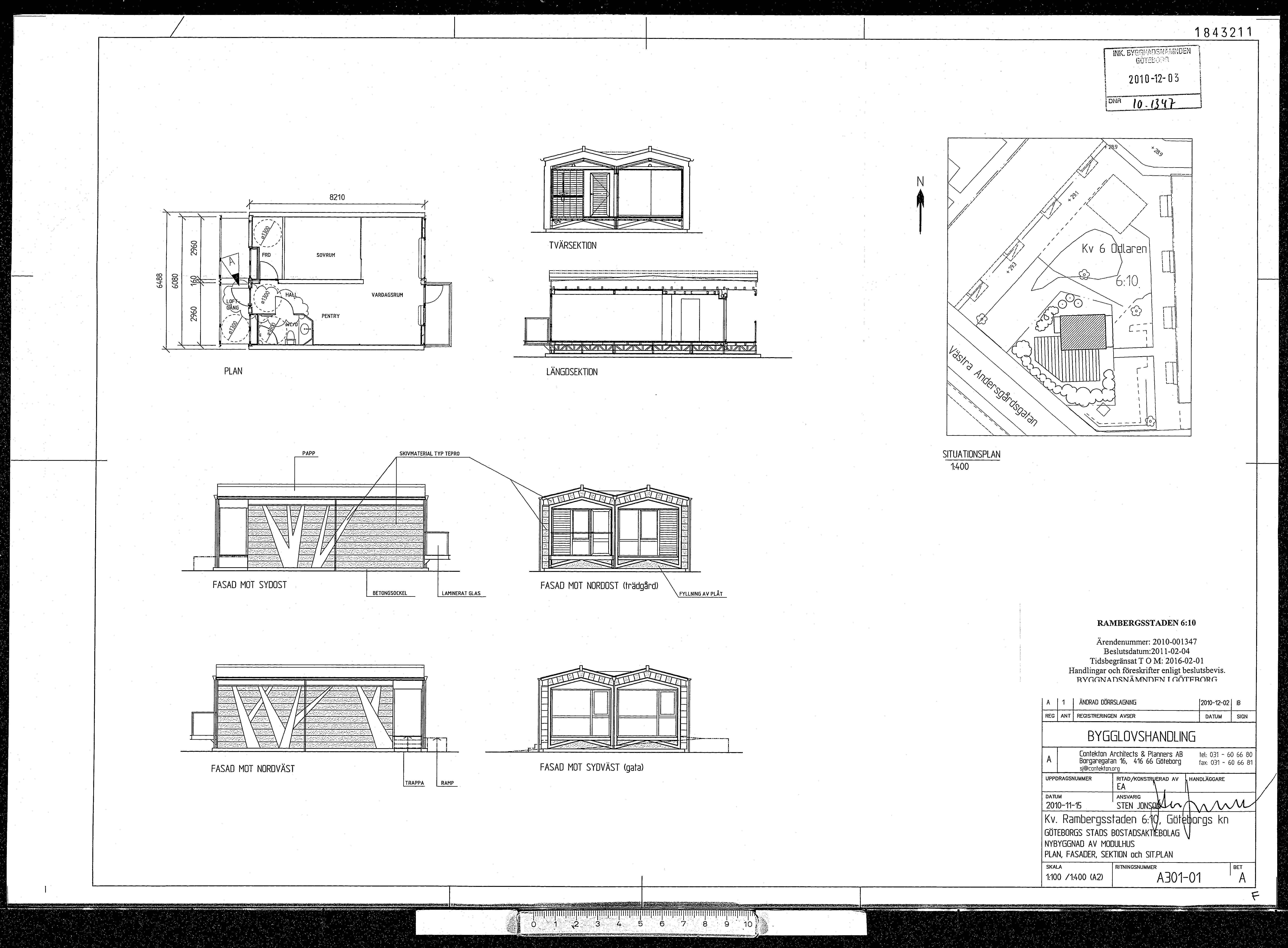
Modular house for dismantling 1st Apartment.
Year of installation: 2011
Address: Västra Andersgårdsgatan 11, 417 15 Gothenburg.
1st Apartment built from 2 modules. Entrance hall with ramp included. Roof, downpipes, furnishings, white goods, etc. are included in the object.
See attached drawings and material inventory at the bottom.
The buyer is responsible for dismantling and removing the modules, the seller is responsible for restoring the land. ATTENTION! Concrete foundations are not included and must remain.
Dismantling can begin after the auction has ended and full payment has been received and must be completed no later than 6/8/2024.
If this does not happen, the object will be removed at the buyer's expense.
Materialinventering 2024-04-14 Ritning 1 Ritning 2 Ritning 3




























































































