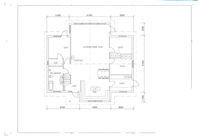
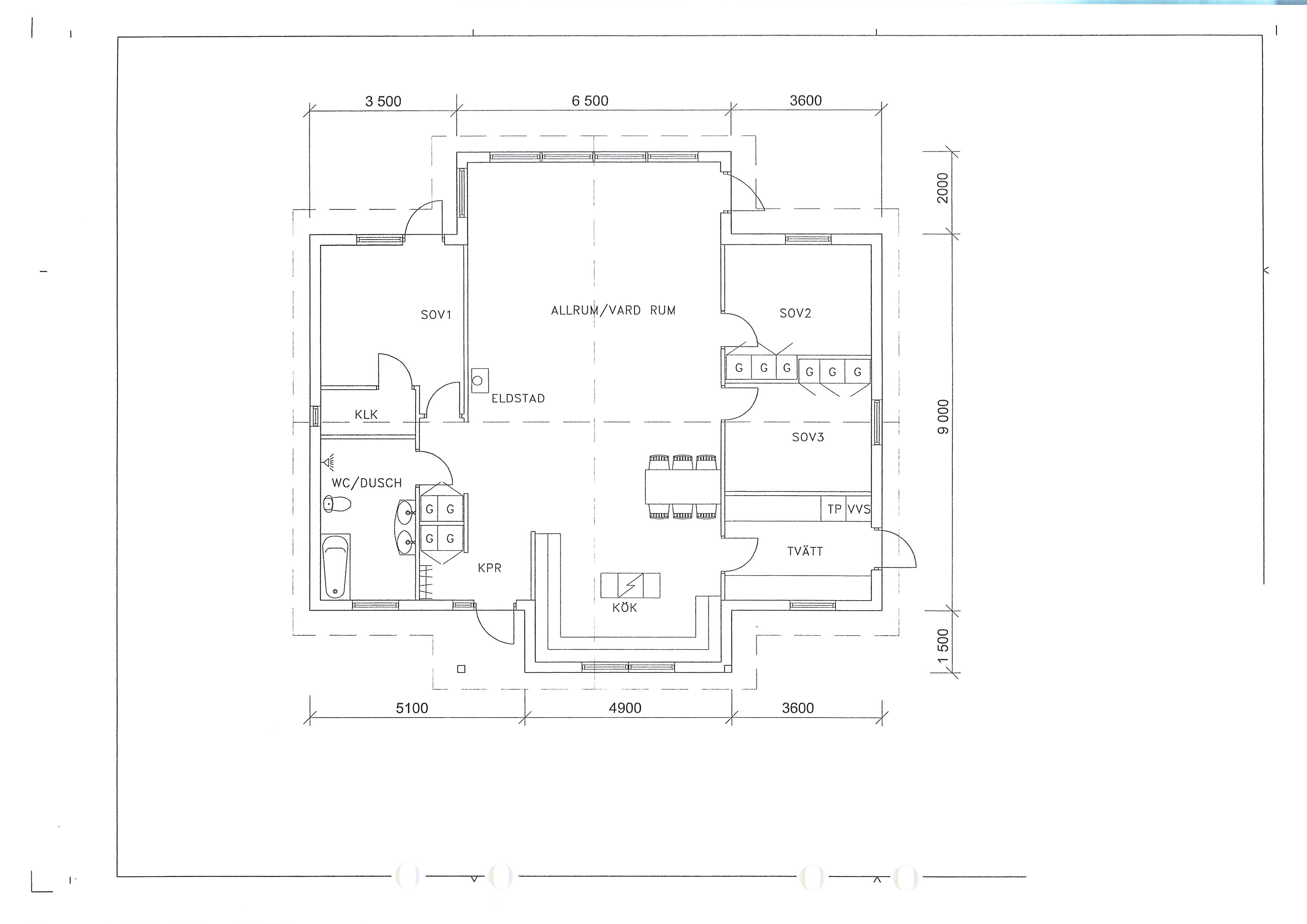
Frame for a single-storey villa of approximately 143 sqm. Solid frame with passive house standard built according to Swedish building standards. Backrest roof in living room / kitchen (midships).
The house is delivered without a panel nailed on (not included), which means that the customer can decide for himself what type of panel he wants and whether it should be horizontal or vertical. You can also choose to clean the house if you want.
Windows and doors not included.
The outer dimensions of the house are 13.6 * 12.5 meters.
Frame construction from the outside in:
Nail batten 12X50
Windscreen
Frame rule 45X195 mm
The following is included:
Wall blocks (12 pcs)
End tips (4 pcs)
Roof trusses
Building permit documents (plan and facade)
Everything packed in packages covered with lightweight press.
Auction Closes
Wednesday, 2025-03-19 11:07 UTC+01:00
Auction ended
Have any questions about the item?
Daniel Fritzson
For all information about frames & shipping call Stefan 0705-562136
Frame for a single-storey house of about 143 sq.m.
Ended
A sustainable action
The climate footprint of a corresponding newly produced item is approx 5647kg CO2 Click here to find out more
För information och frågor som berör frakt kontakta Stefan på nr: 0705-562136
Linköping
No view possible.
For customers within Sweden only
Linköping
These objects are for Swedish customers only
Disposal
Disposal means that a client has goods that they wish to sell. For example, it may be a supply / storage that is needs to be emptied, or that the company has restructured and does not need office space / equipment / etc anymore. This differs from bankruptcy since it's a voluntary sale.









